DCS2 x G-Hadron Adapter

Skip unnecessary integration: Run the most popular payloads instantly.
DroneCore Suite x G-Hadron Adapter is a combination of hardware and software for seamless transmission of video stream from G-Hadron gimbal into the Jetson running on the DroneCore Suite.
Box content
1x G-Hadron Adapter for DCS, including a software driver.
1x Cam – FPC cable (length 10 cm / 20 cm / 25 cm)
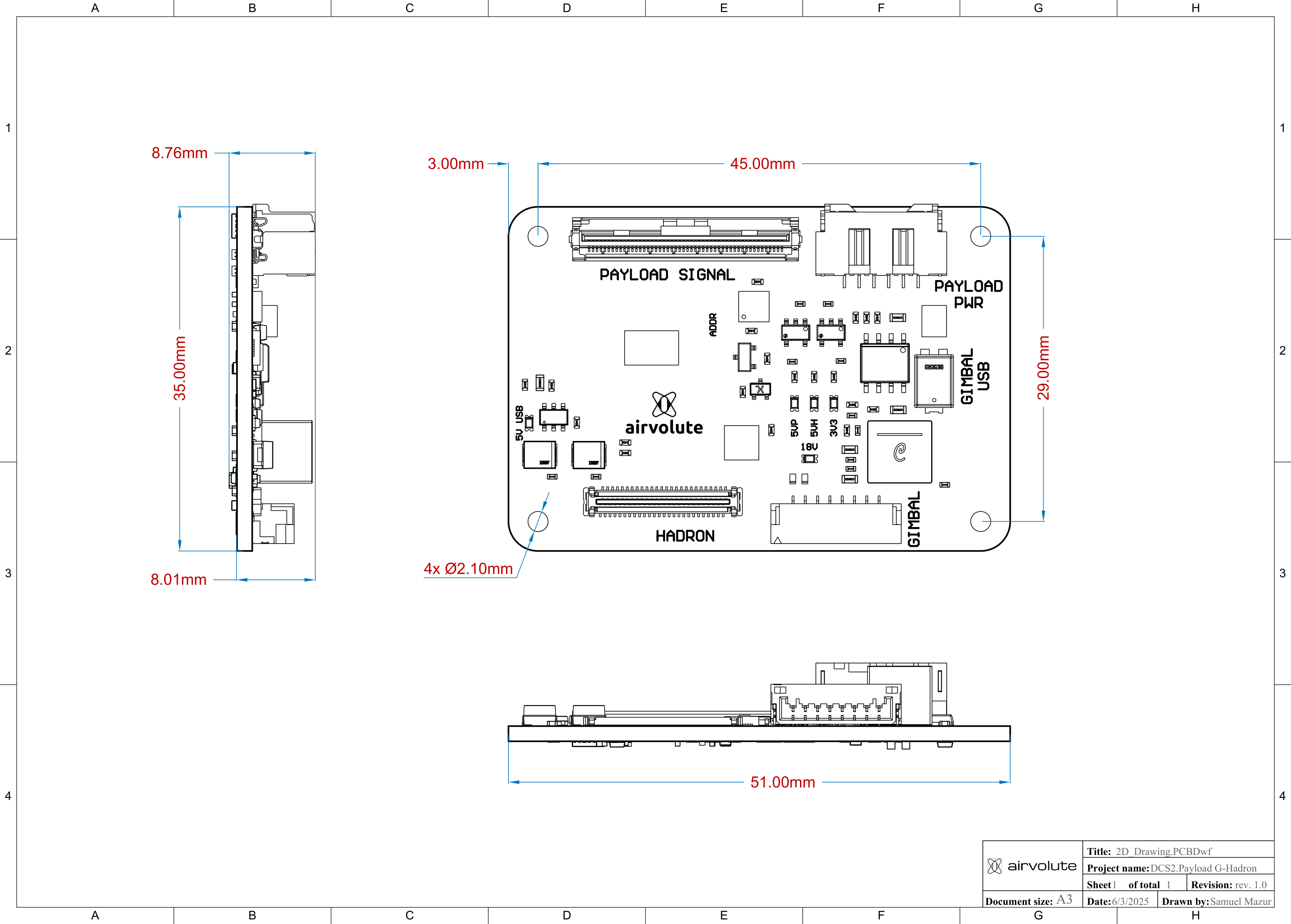
Dimensions

Connectors and pinouts
Top side connectors
PAYLOAD SIGNAL
matching connector Hirose DF36-50P-0.4SD
I2C and PWND are 3V3 logic
RX/TX orientation in respect with gimbal side
Pins marked with * are NC in the default configuration
This connector can be connected/disconnected only when the system is powered off!
1-14
NC
15
CSI_D3_P
16
CSI_D3_N
17
CSI_D2_P
18
CSI_D2_N
19
I2C_SDA
20
I2C_SCL
21
MCLK
22
PWDN
23
CSI_CLK_P
24
CSI_CLK_N
25
CSI_D1_P
26
CSI_D1_N
27
CSI_D0_P
28
CSI_D0_N
29
USB_PWRCTL
30
USB_OC
31
USB_D_P
32
USB_D_N
33
USB_RX_P*
34
USB_RX_N*
35
USB_TX_P*
36
USB_TX_N*
37-44
NC
45
UART_RX*
46
UART_TX*
47
NC
48
NC
49
SERIAL1_RX
50
SERIAL1_TX
Last updated
